1. Главная
  2. Дивногорск
  3. Комнаты
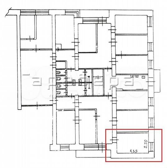
Комната 12 м² в 1-к., 5/5 эт.
Комната 12 м² в 1-к., 5/5 эт.
Комната 12 м² в 1-к., 5/5 эт.
Комната 12 м² в 1-к., 5/5 эт.
Комната 12 м² в 1-к., 5/5 эт.

Комната 12 м² в 1-к., 5/5 эт.

Предлагается в продажу уютная двенадцати метровая комната в общежитии на улице Чкалова,74/1. В комнате сделан косметический ремонт, на полу линолеум, окна ПВХ. Остается стиральная машина.
Объвление найдено на сайте avito.ru. Перейдите по ссылке для покупки или просмотра более подробной информации
© 2021-2024